ADELAIDE WHARF:
Destinazione
d'uso: residenziale
Tipologia: nuova costruzione
Progetto
architettonico: Allford Hall Monaghan Morris
Committente: First
Base Ltd & English Partnerships
Progetto
strutture: Adams
Kara Taylor
Periodo
di costruzione: aprile 2006 – ottobre2007
Superficie: 14.823 mq
Costo : £22 Milioni
Stato: Inghilterra
Città: Londra
Città: Londra
Località: Hackeney
Numero
delle residenze: 147 ( 73
alloggi a libero mercato, 33 affitto canone calmierato, 41
progetto Keyworker)
Gli alloggi:
52 bilocali da 45mq, 53 trilocali da75 mq, 34 quattro vani da 90 mq, 4 cinque
vani da 100 mq.
Premi: Building Magazine: Housing Project of the Year 2009, Civic Trust Award 2009, Civic Trust Special Award for Best Housing Project 2009, GLA London Planning Awards for Best New Place to Live 2009, Hackney Design Award 2009, CABE Building for Life 2008, Housing Design Award 2008, RIBA Award for Architecture 2008, RIBA National Award for Architecture 2008, World Architecture Festival: Highly Commended 2008.
Premi: Building Magazine: Housing Project of the Year 2009, Civic Trust Award 2009, Civic Trust Special Award for Best Housing Project 2009, GLA London Planning Awards for Best New Place to Live 2009, Hackney Design Award 2009, CABE Building for Life 2008, Housing Design Award 2008, RIBA Award for Architecture 2008, RIBA National Award for Architecture 2008, World Architecture Festival: Highly Commended 2008.
L’intervento si inserisce nell’ambito di un programma di
trasformazione e rinnovamento delle periferie industriali della città di Londra. La valorizzazione del parco e del canale sono stati tra gli elementi più importanti dell'intero progetto. Qui un tempo erano confinate le classi lavoratrici e ad oggi il nuovo l’obiettivo è quello di
creare una rigenerazione urbana anche attraverso il mix sociale.
Il complesso londinese
progettato da Allford Hall Monaghan Morris per il developer First
Base dimostra l’efficacia dell’integrazione di aspetti funzionali
e costruttivi per ottenere una “macchina per abitare” con
alte prestazioni energetiche e costi limitati. L’obiettivo
iniziale è stato raggiunto grazie, fra l'altro, all’uso
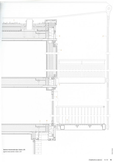
dell’approccio modulare a secco, tipicamente usato negli edifici
per uffici, opportunamente accoppiato alle parti strutturali
realizzate in opera, senza rinunciare alla qualità architettonica e
a un inserimento accurato nel contesto urbano.
Adelaide Wharf è un
complesso abitativo che comprende: 73 appartamenti per il
collocamento sul mercato, 33 appartamenti di edilizia sociale per
l’operatore Family Mosaic e 41 appartamenti per key workers nel
quadro della London-wide Initiative, che punta a mantenere nel cuore
della città impiegati cruciali del settore pubblico (insegnanti,
personale medico, vigili del fuoco, forze dell'ordine ecc.). Una
delle prime decisioni progettuali è stata quella di concepire
l’intero intervento senza distinzioni architettoniche, funzionali o
prestazionali fra i tre gruppi di utenti, ottimizzando di
conseguenza, il sistema costruttivo. Le facciate, punteggiate dai
balconi sospesi e sostanzialmente omogenee su tutti i fronti, si
caratterizzano per l’uso quasi industriale del legno e del metallo,
in risposta a un contesto urbano piuttosto critico. L’area
destinata all’intervento, precedentemente occupata da piccoli
capannoni industriali, si trova, infatti, nel borough di Hackney e,
in particolare, nel ward di Shoreditch , tradizionalmente abitato
dalla classe operaia di Londra.

I progettisti hanno risposto a questo contesto con la concentrazione di semplici volumi parallelepipedi lungo i confini dell’area disponibile: in questo modo, oltre a semplificare la successiva costruzione modulare, è stato possibile destinare la stecca affacciata sul canale agli appartamenti privati, riservando la vista sugli spazi verdi agli alloggi sociali.
L’accesso al giardino comune avviene attraverso ampie aperture praticate nel piano terra, rivestito in mattoni per mediare le differenze di quota del terreno.

Da qui, generosi spazi a doppia altezza conducono a nuclei di distribuzione verticale, da cui si diramano corridoi comuni, caratterizzati dalla presenza della luce naturale. Tutti gli appartamenti hanno l’affaccio singolo e l’accesso ad un corridoio centrale: sebbene questa tipologia non sia ottimale per la ventilazione naturale, è stata scelta per garantire un rapporto forma (Superficie/Volume) efficace per gli edifici, limitando così il costo dell’involucro rispetto alla superficie utile.

I progettisti hanno risposto a questo contesto con la concentrazione di semplici volumi parallelepipedi lungo i confini dell’area disponibile: in questo modo, oltre a semplificare la successiva costruzione modulare, è stato possibile destinare la stecca affacciata sul canale agli appartamenti privati, riservando la vista sugli spazi verdi agli alloggi sociali.
![]() |
| Lato stradale |
![]() |
| Facciate sulla corte interna |
L’accesso al giardino comune avviene attraverso ampie aperture praticate nel piano terra, rivestito in mattoni per mediare le differenze di quota del terreno.

Da qui, generosi spazi a doppia altezza conducono a nuclei di distribuzione verticale, da cui si diramano corridoi comuni, caratterizzati dalla presenza della luce naturale. Tutti gli appartamenti hanno l’affaccio singolo e l’accesso ad un corridoio centrale: sebbene questa tipologia non sia ottimale per la ventilazione naturale, è stata scelta per garantire un rapporto forma (Superficie/Volume) efficace per gli edifici, limitando così il costo dell’involucro rispetto alla superficie utile.
Gli appartamenti sono concepiti per ridurre al
minimo gli spazi di circolazione e concentrare gli ambienti serviti
dagli impianti verso il corridoio centrale. La scelta di collocare
salone, cucina e sala da pranzo in un unico ambiente aperto dà
respiro anche agli appartamenti più piccoli: nel caso dei bilocali,
anche la camera da letto può essere collegata allo spazio diurno per
mezzo di una parete scorrevole (soluzione, invece, omessa negli
alloggi sociali). Ogni appartamento è dotato di un ampio balcone,
che funge da ampliamento dello spazio abitativo: con dimensioni che
variano da 4 a 12 mq, sono a tutti gli effetti piccole stanze private
all’ aperto. Rompendo la massa compatta degli edifici, essi
connotano l’architettura e costituiscono, nelle parole degli
architetti, un omaggio a uno degli elementi più iconici del
Movimento Moderno.

La minimizzazione delle lavorazioni umide in cantiere ha permesso di ridurre di 6 mesi la durata dei lavori rispetto ad un'analoga costruzione tradizionale, con conseguenti vantaggi economici. Il complesso delle scelte morfologiche, distributive, strutturali e tecnologiche ha portato anche a un risparmio del 20% sui costi standard per un edificio di analoghe prestazioni ( il complesso è in attesa di certificazione "excellent" secondo lo standard BREEAM Ecohomes per l’accessibilità e l’efficienza grazie ai sistemi per il recupero delle acque meteoriche, ai sensori interni agli ambienti per il controllo dell’energia usata, etc.) , mostrando come oggi siano disponibili tecnologie costruttive adeguate per la realizzazione di interventi di social housing solidi, di alta qualità, e anche in grado di accogliere modifiche funzionali nel tempo.
Le
parole chiave del progetto sono alta densità e sostenibilità
energetica e ambientale e il lavoro dei progettisti è rivolto alla
definizione delle relazioni tra spazi privati domestici e spazi
collettivi pensando anche alla dotazione di spazi all’aperto. Hanno previsto, all’interno
dell’abitazione, degli spazi per svolgere attività legate
alla quotidianità domestica, ma anche alle relazioni sociali senza
che questo vada a scapito degli ambienti privati.
Immagini
![]() |
| Sito di progetto prima della riqualificazione. |
![]() |
| Fase di demolizioni delle pre-esistenze |
![]() |
| Fasi del cantiere |
![]() |
| Fasi del cantiere |
![]() |
| Fasi del cantiere |
![]() |
| Fasi del cantiere |
![]() |
| Vista dal canale |
![]() |
| Uno degli ingressi |
![]() |
| Vista dal balcone lato canale |
![]() |
| Foto dell'interno |
![]() |
| Foto dell'interno |
Il progetto
![]() |
| Studi volumetrici : a sinistra il complesso progettato da AHMM; a destra i volumi autorizzati originariamente |



































