Architetti:
PLOT (BIG + JDS)
Luogo:
Copenhagen, Denmark
Responsabile:
Bjarke Ingles per BIG, Julien De Smedt per JDS
Project
Architect: Jakob Lange
Project
Leader: Finn Nørkjær
Project
Manager: Jan Borgstrøm
Collaboratori:
JDS/JULIEN DE SMEDT ARCHITECTS, Moe & Brødsgaard, Freddy Madsen Rådgivende
Ingeniører ApS
Ingegneria:
Moe & Brodsgaard
Capocantiere:
Henrick Poulsen
Cliente:
Høpfner A/S
Realizzazione:
DS Elcobyg A/S /PH Montage
Area:
33.000,0 mq
Anno:
2008

CONCEPT PROGETTUALE
“The
Mountain Dwellings” è la seconda generazione delle Case VM - stesso cliente,
stesse dimensioni e la stessa strada.

INQUADRAMENTO TERRITORIALE E MASTERPLAN
Il
programma costruttivo è 2/3 di parcheggio e 1/3 di abitazioni: il parcheggio è
diventato la base su cui collocare le case a schiera, come una collina di
cemento coperta da un sottile strato di abitazioni a cascata dall’undicesimo
piano al piano strada.
Piuttosto
che fare due edifici separati uno accanto all'altro, uno per il parcheggio e uno
per il complesso residenziale, gli architetti hanno deciso di unire le due
funzioni in un rapporto simbiotico.
L'area
di parcheggio deve essere collegata alla strada, mentre le case richiedono la
luce del sole, l'aria fresca e la vista, quindi tutti gli appartamenti sono dotati
di giardini pensili in direzione sud est, una vista mozzafiato e un parcheggio.
Questo
edificio oltre che dalla strada carrabile è servito dalla metropolitana, dalla
pista ciclabile e da un percorso pedonale.
“The
Mountain Dwellings” è un blocco a terrazzamenti che tuttavia appare come un
quartiere suburbano di case con giardino che però si trova su un edificio di 10
piani riuscendo così ad avere i vantaggi di una vita suburbana ma con una
densità urbana.
I
residenti degli 80 appartamenti sono i primi della città di Orestaden ad avere
la possibilità di parcheggio direttamente appena fuori dalle loro case. La
gigantesca area di parcheggio contiene 480 posti auto e un ascensore inclinato
che si muove lungo le pareti interne della montagna. In alcuni punti l'altezza
del soffitto raggiunge i 16 metri, dando l'impressione di uno spazio simile a
quello di una cattedrale.
Le pareti interne del parcheggio sono decorate con una serie di murales dell'artista francese Victor Ash che raffigura scene di animali selvatici come alci e lupi in piedi in cima a montagne di automobili distrutte. Per le occasioni speciali lo spazio urbano del garage viene utilizzato come luogo per eventi e feste, e una funzione molto particolare è quella del retro che viene usato a volte da un'associazione locale di alpinisti per installare una parete da arrampicata.
Le
facciate nord e ovest sono coperte da lastre di alluminio perforato, che
lasciano entrare aria e luce al parcheggio. I fori nella facciata formano un’enorme
riproduzione del Monte Everest. Di giorno i fori nelle lastre appariranno neri
rispetto al lucido dell’alluminio e l'immagine sembrerà quella di una foto
rasterizzata ruvida. Di notte la facciata sarà illuminata dall'interno e sembrerà
un negativo fotografico in diversi colori, come diversi sono i colori di ogni
piano del parcheggio.
Il
complesso ha quattro affacci liberi, mentre gli appartamenti ne hanno uno sulla
zona del giardino. Ognuno di essi è un attico visto che la tipologia è quella
del blocco a terrazzamenti e si sviluppano come simplex a forma di L. Gli
appartamenti sono modulari ed hanno dimensioni fisse di 10,4x15 m (a parte le
soluzioni d’angolo e le abitazioni a piano terra e all’ultimo piano).
PIANTA PIANO TERRA CON SCHEMA DISTRIBUTIVO
PIANTA PIANO TIPO CON SCHEMA DISTRIBUTIVO
PIANTA PIANO TERRA
PIANTA PIANO TERZO
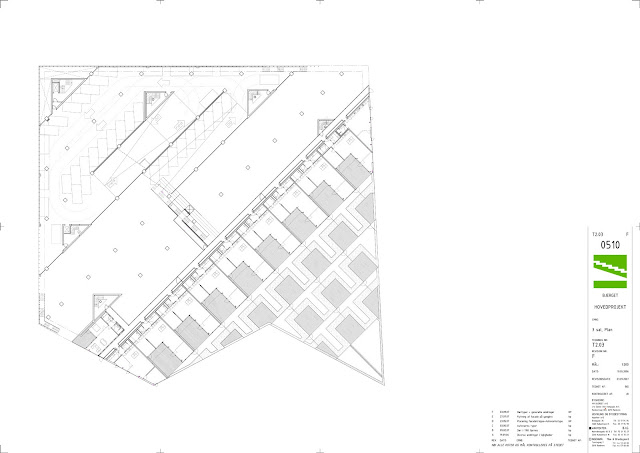
PIANTA PIANO QUARTO
PIANTA PIANO COPERTURA
La
distribuzione è semplice e ripetuta in tutti gli appartamenti in modo uguale:
troviamo il ballatoio esterno da cui si accede all’appartamento, c’è un
disimpegno centrale ai cui lati ci sono gli spazi di servizio (bagni e
ripostigli/lavanderie), successivamente si accede alla zona living con cucina e
salotto open space; da qui si accede alle camere che nei vari appartamenti
hanno diverse configurazioni grazie all’utilizzo di pareti scorrevoli e mobili
che permettono di ricavare una o due camere da letto; si accede infine alla
terrazza con giardino.
PIANTA ALLOGGIO TIPO (CONFIGURAZIONE CON UNA SOLA CAMERA DA LETTO)
PIANTA ALLOGGIO TIPO (CONFIGURAZIONE CON DUE CAMERE DA LETTO)
PIANTA ALLOGGIO TIPO (ALLOGGIO ESPOSTO SUL LATO NORD)
PIANTA ALLOGGIO TIPOLOGIA 1 (ALLOGGIO A PIANO TERRA)
PIANTA ALLOGGIO TIPOLOGIA 2 (ALLOGGIO A PIANO TERRA)

PIANTA ALLOGGIO TIPOLOGIA 3 (CONFIGURAZIONE A DUE O UNA CAMERA)


PIANTA ALLOGGIO TIPOLOGIA 3 (CONFIGURAZIONE A DUE O UNA CAMERA)

PIANTA ALLOGGIO TIPOLOGIA 4 (ALLOGGIO ESPOSTO A NORD )
I giardini pensili sono costituiti da una terrazza e da
un giardino verde che cambia carattere a seconda delle stagioni. L'edificio ha
un sistema di irrigazione enorme che mantiene curati i giardini pensili.
L'unica cosa che separa l'appartamento dal giardino è una facciata vetrata con
porte scorrevoli per fornire luce e aria fresca.

La zona servente è esposta a nord-ovest ed è in posizione laterale rispetto agli appartamenti. Per salire ai vari piani c’è un ascensore centrale che attraversa il parcheggio e arriva ai ballatoi, ci sono dei blocchi scala di forma triangolare oppure c’è una scala che gira tutta intorno all’edificio.




“The Mountain Dwellings” si trova nella città di Orestad e offre il meglio dei due mondi: la vicinanza alla vita frenetica della città, nel centro di Copenaghen, e la caratteristica tranquillità della vita di periferia.
Il Mountain Dwellings ha ricevuto i seguenti premi:
- Premio ULI per eccellenza, 2009
- Award MIPIM per il miglior sviluppo residenziale, 2009
- World Architecture Festival per il miglior edificio residenziale, 2008
- Miglior edificio in Scandinavia, 2008
- Premio ULI per eccellenza, 2009
- Award MIPIM per il miglior sviluppo residenziale, 2009
- World Architecture Festival per il miglior edificio residenziale, 2008
- Miglior edificio in Scandinavia, 2008
Piante
Pianta Piano Interrato
Pianta Piano Terra
Pianta Primo Piano
Pianta Secondo Piano
Pianta Terzo Piano
Pianta Quarto Piano
Pianta Quinto Piano
Pianta Sesto Piano
Pianta Settimo Piano
Pianta Ottavo Piano
Pianta Nono Piano
Pianta Decimo Piano



















































































